11601 Robious Road
Midlothian, VA 23113
Office:
23,785± SqFt
Contact Brokers
Interested in this property?
Property Information
Description
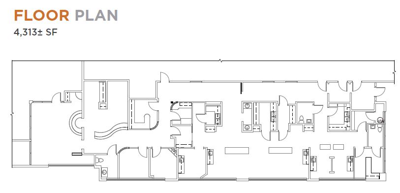
- 4,313± SF Medical Office – Now Available
- Beautifully Appointed Interior: Custom, high-end finishes designed specifically for medical office use
- Maximum Visibility: Prominent building and monument signage opportunities
- Outstanding Location: Prime frontage on Robious Road with signalized intersection for easy access
- Ample Parking: Generous 5 spaces per 1,000 SF parking ratio
- Convenient Amenities Nearby: Surrounded by popular destinations including Starbucks, ACAC Fitness, Maple Street Biscuit Co., Publix, and more!


