201 N. Washington Highway
Ashland, VA 23005
Office:
20,652± SqFt
Contact Brokers
Interested in this property?
Property Information
Description
- THREE STORY OFFICE BUILDING LOCATED IN THE HEART OF ASHLAND
-
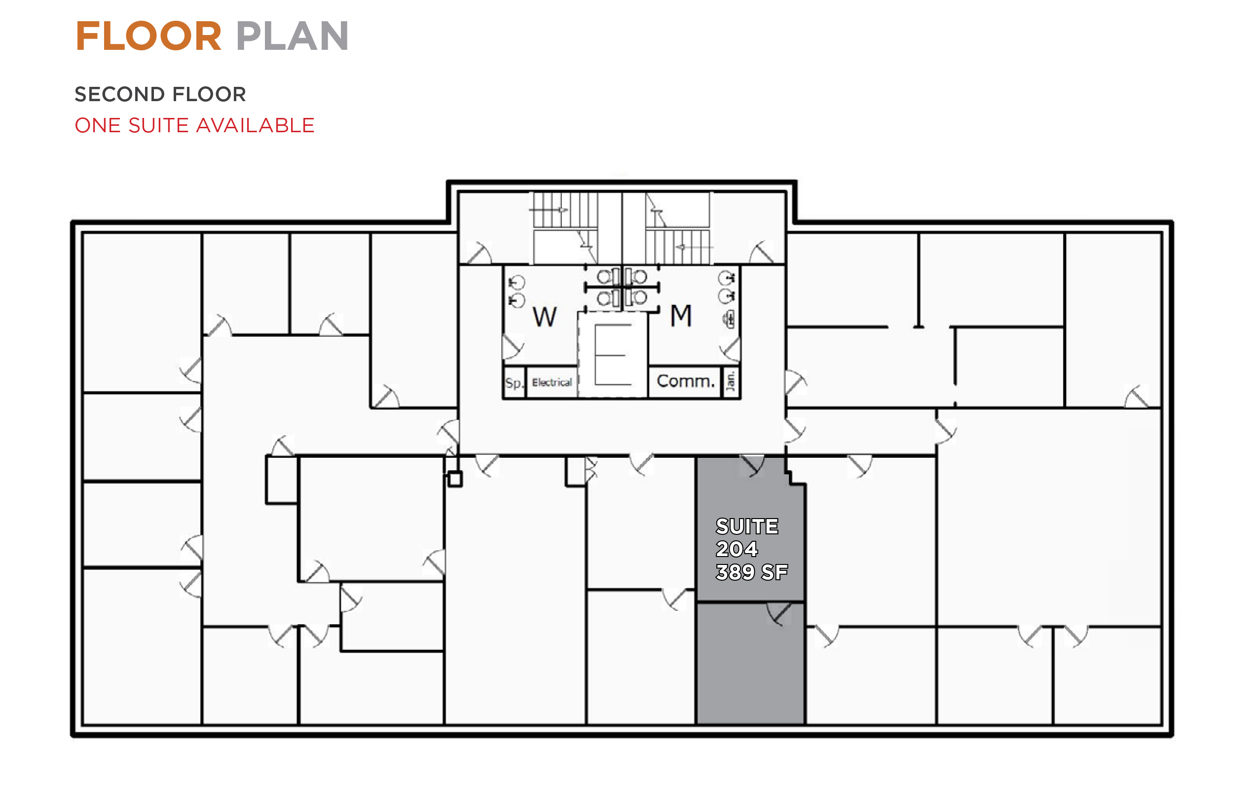
One Suite Available
204 – 389± SF - Abundant parking
- 0.5 miles from interstate access
- Other tenants include Primis Bank, H&R Block and Edward Jones
- Located near several restaurants, grocery stores and retail shops
- Lease Rate: $21.00/FS


