4000 Coliseum Drive
Hampton, VA 23666
Rental Rate:
$19.57
Office:
103,604± SqFt
Contact Brokers
Interested in this property?
Property Information
Description
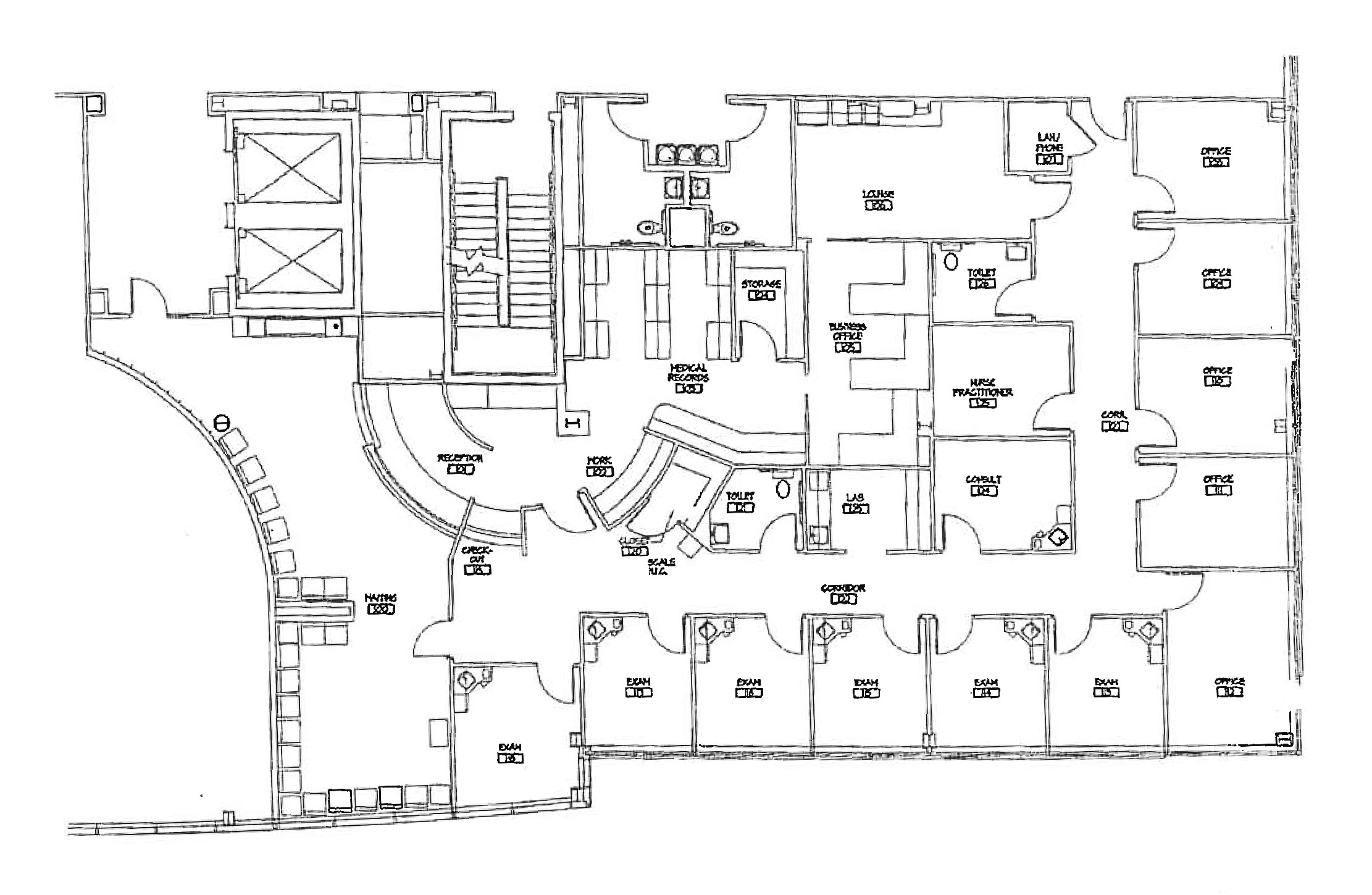
- Located in the Sentara CarePlex MOB in Hampton
- Sublease term available through 02/28/2025
- Fully built out for a medical user with recently updated finishes
- Totals 4,647± SF, to include 6 exam rooms, 5 provider offices, 1 lab, 3 misc. offices, and a breakroom
- Situated right off of I-64
- Lease Rate: $19.57/SF Full Service


