600 Southlake Blvd
Richmond, VA 23236
Office:
67,945± SqFt
Contact Brokers
Interested in this property?
Property Information
Space Available
14,996± SqFt
Total Size
67,945± SqFt
Description
- Availability
– 1st Floor – 1,061± sf office (suite B) 2,197± sf office (suite A)
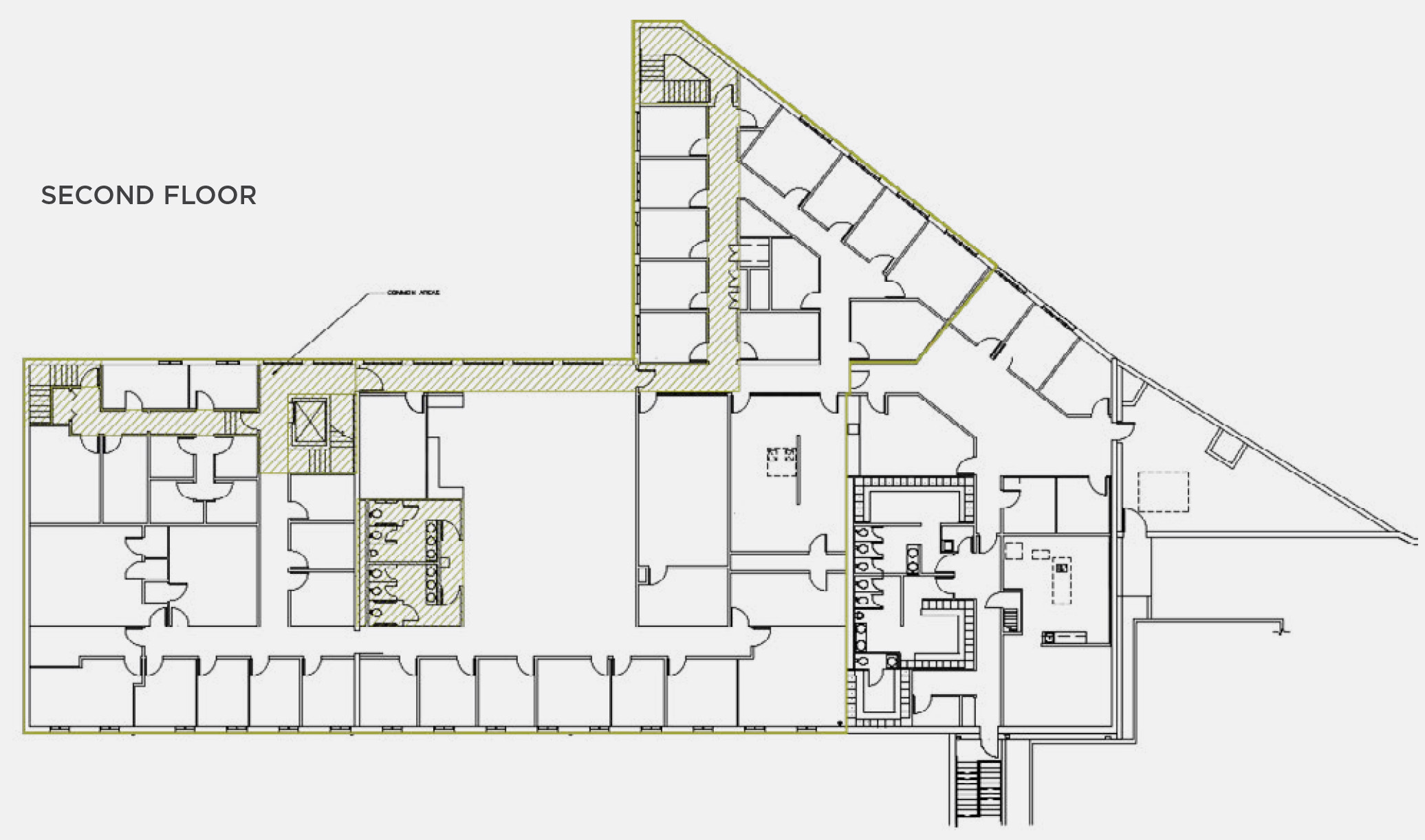
– 2nd Floor – 11,738± sf office (subdividable) - Former “Ukrop’s” corporate headquarters
- Abundant surface parking available
- Monument sign on Southlake Boulevard
- Located within historic Southport Business Park
- Nearby amenities include: Roastology Coffee, Chesterfield Town Center, Arby’s and Midlothian Athletic Center
For Lease
-
Suite B | 1,061± SF
Rental Rate: Contact Agent
-
Suite A | 2,197± SF
Rental Rate: Contact Agent
-
Suite 2 | 11,738± SF
Rental Rate: Contact Agent
Subdividable


