8917 Fargo Road
Richmond, VA 23229
Office:
11,654± SqFt
Sale Price:
$2,300,000
Contact Brokers
Interested in this property?
Description
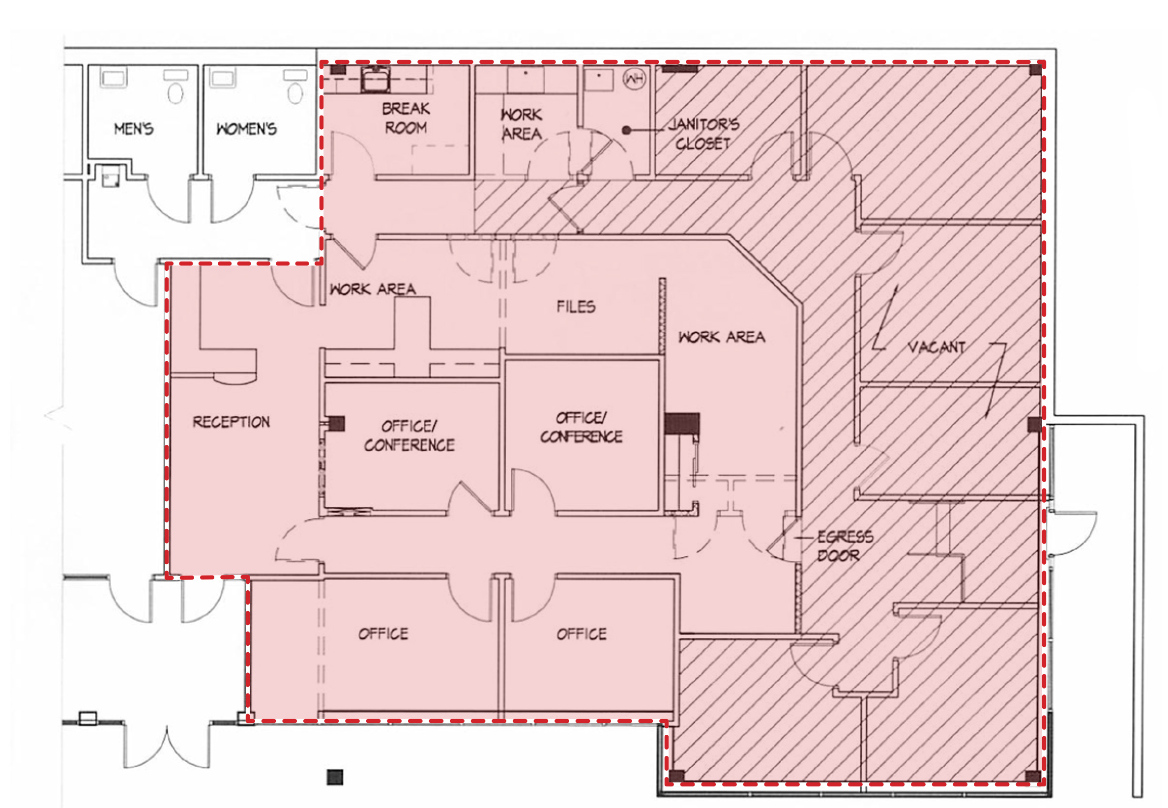
- 11,654± SF medical/office building for sale
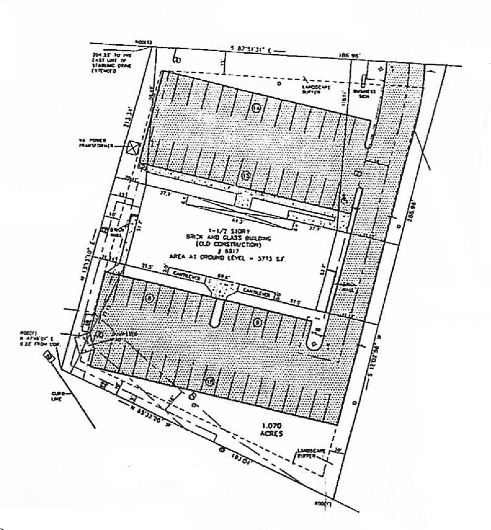
- Situated on 1.07± AC
- Opportunity Zone
- Income producing property
- Ideally suited for an owner-occupant with 3,000 – 6,000± SF available
- Medical appropriate parking (5:1,000)
- Signalized intersection on nearby Parham Road
- Close proximity to Regency Mall and numerous amenities off Parham Road


