9201 Arboretum Parkway
Richmond, VA 23236
Rental Rate:
$19.50
Office:
74,772± SqFt
Contact Brokers
Interested in this property?
Property Information
Space Available
25,341± SqFt
Total Size
74,772± SqFt
Description
- Three-story, 74,772± SF Class A suburban office building located within Arboretum Office Park
-
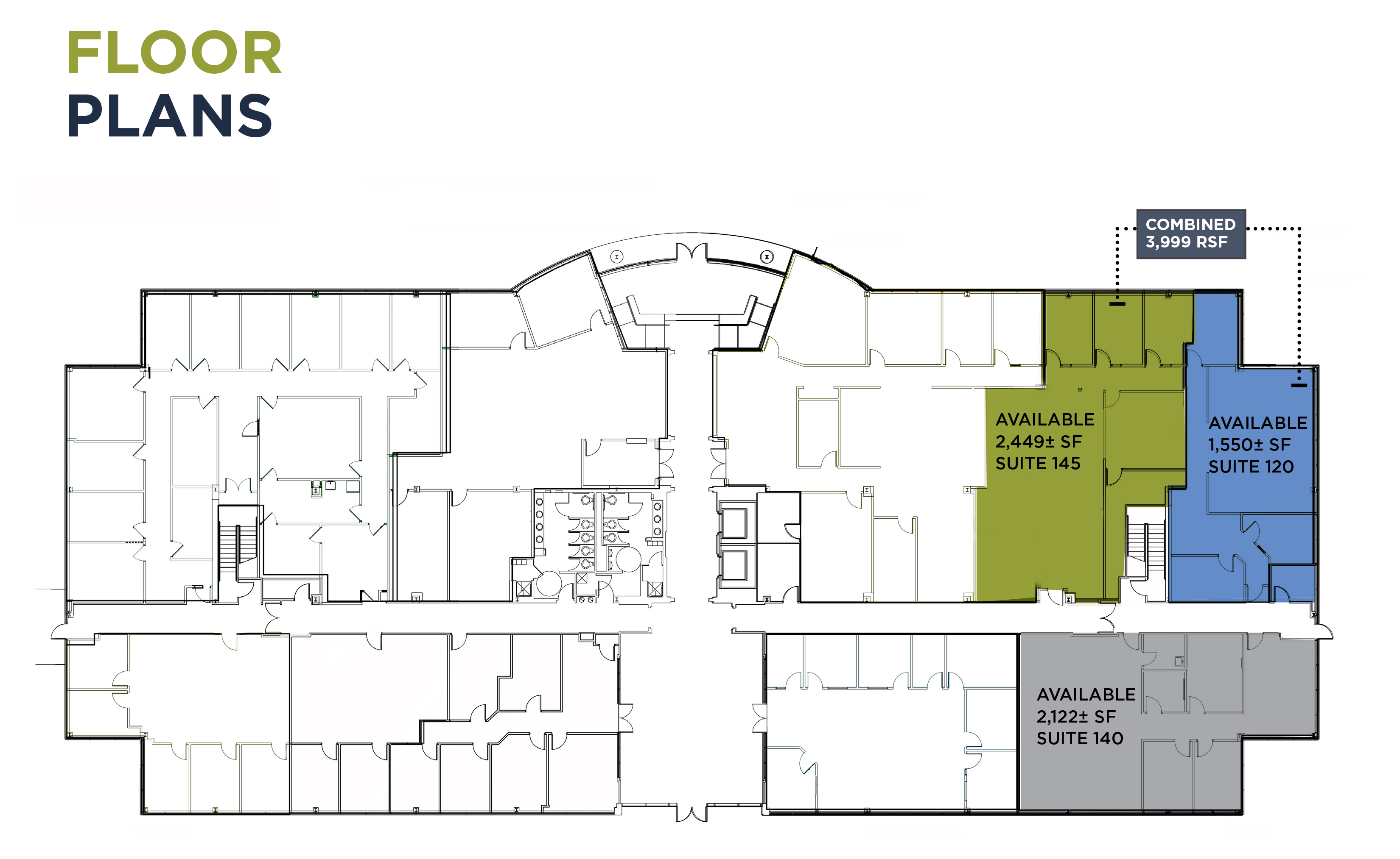
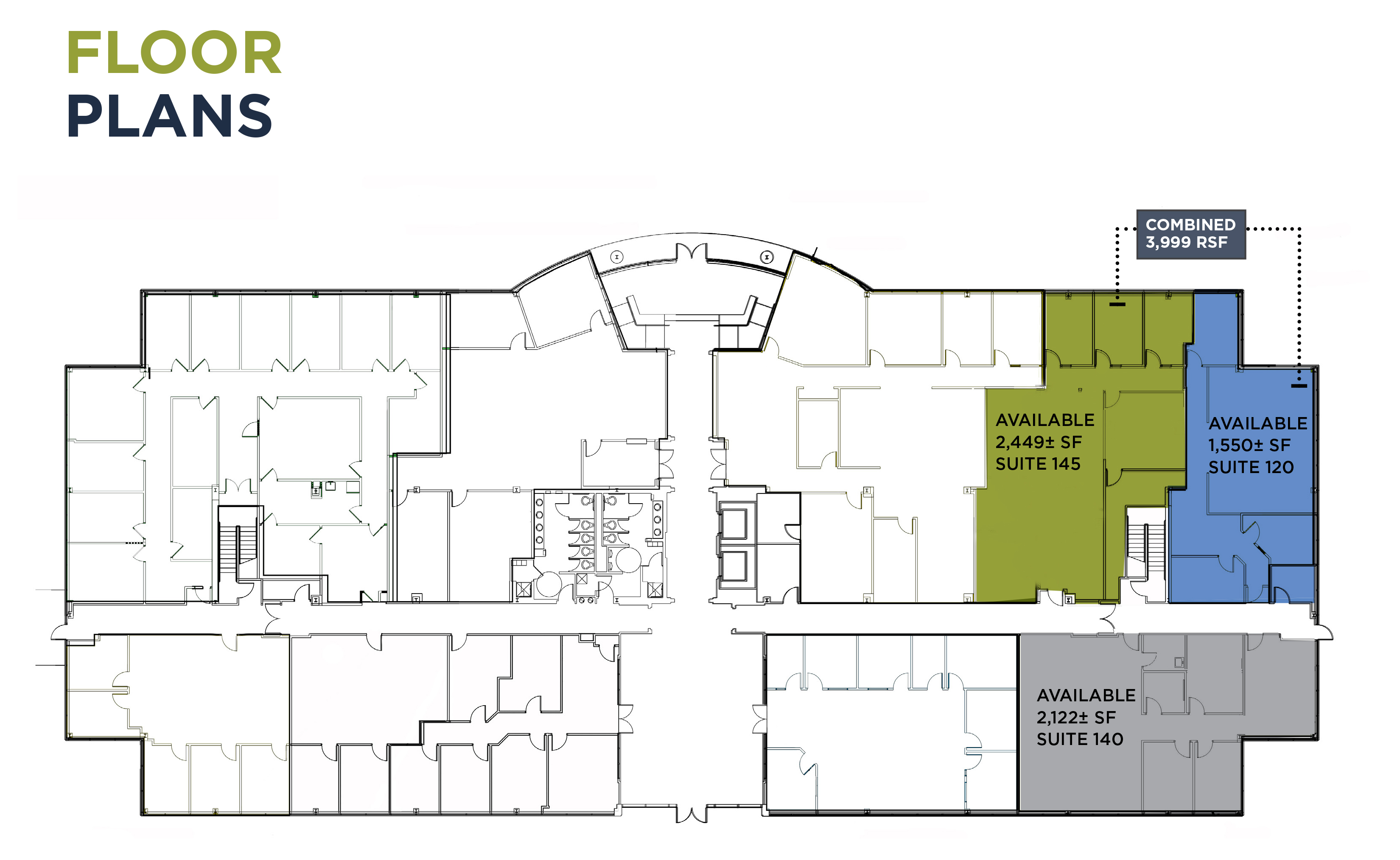
Available Suites:
Suite 120: 1,550± SF
Suite 140: 2,122± SF
Suite 145: 2,449± SF
Suite 310: Suites ranging from 2,477 – 16,407± SF
Suite 330: 2,813± SF - Location: Direct access from Powhite Parkway (Rt. 76) and Midlothian Turnpike (Rt. 60)
- Stylish Design: Two-story atrium with rich wood and marble finishes throughout
- Nearby Amenities: Close to shopping, dining, and various nearby amenities
- Bright Interiors: 9’ full-height windows provide ample natural light throughout
- Scenic Setting: Building has a private patio overlooking one of the park’s lakes
- Parking: Abundant parking for both tenants and visitors
- Property Management: Professionally managed by Commonwealth Commercial Partners, LLC
For Lease
-
Suite 145 | 2,449± SF
Rental Rate: $19.50/SqFt
-
Suite 330 | 2,813± SF
Rental Rate: $19.50/SqFt
-
Suite 120 | 1,550± SF
Rental Rate: $19.50/SqFt
-
Suite 140 | 2,122± SF
Rental Rate: $19.50/SqFt
-
Suite 310 | 16,407± SF
Rental Rate: Contact Agent



