Wilden Drive
Ashland, VA 23005
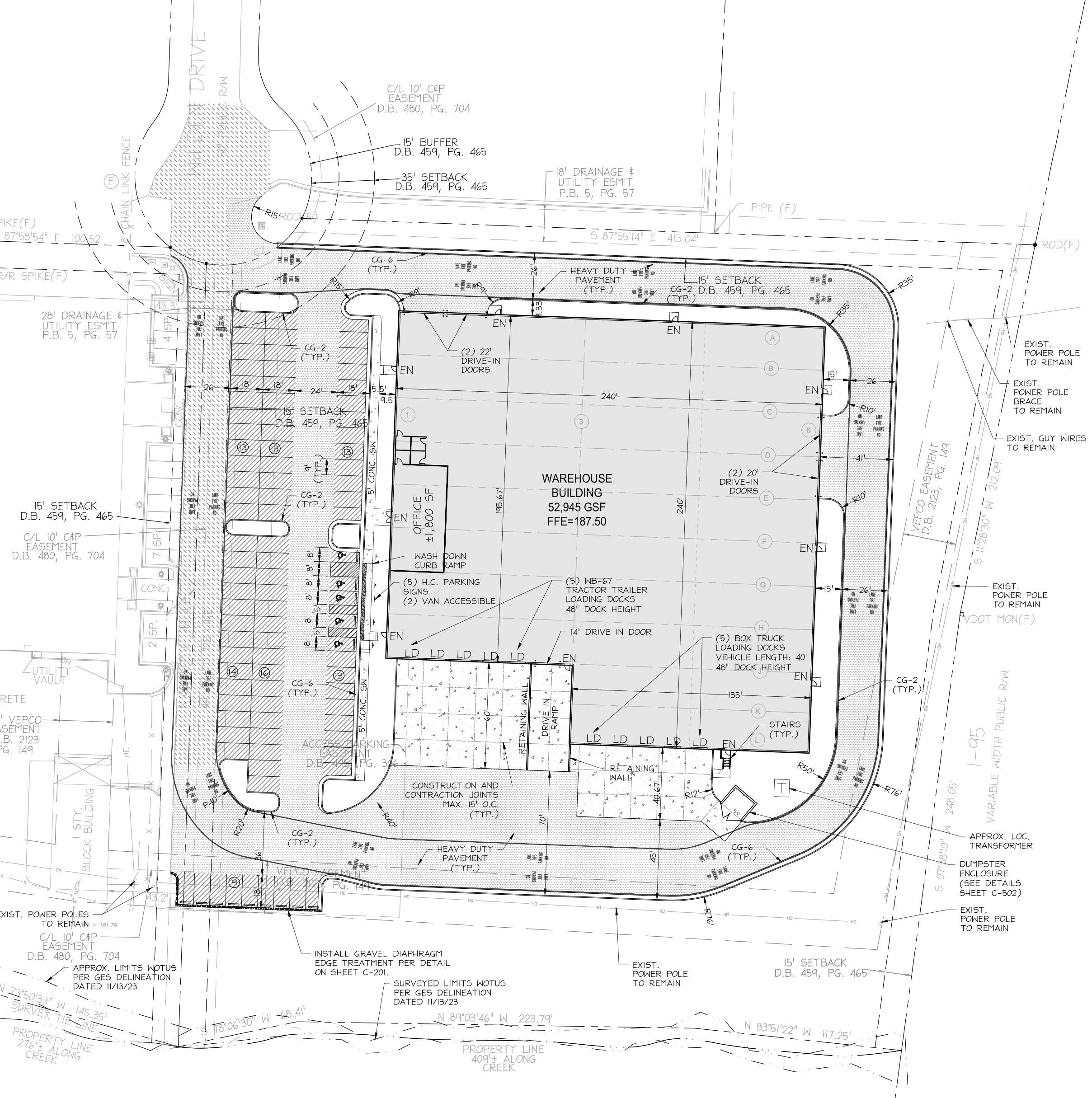
Industrial:
52,425± SqFt
Contact Brokers
Interested in this property?
Property Information
Description
- New 52,425± SF warehouse/manufacturing speculative development
- New construction ‒ Delivery 2027
- Will build to suit office
- 21′ x 30′ warehouse clear height
- Nine (9) dock high loading positions with four (4) oversized drive-in doors (22′ x 16′)
- ESFR fire suppression
- 7″ fiber reinforced slab
- M-2 Zoning
- Located in the desirable Lakeridge Industrial Park (Hanover County) with easy access to I-95
- Call Agent for Lease Rate


