7240 Patterson Avenue
Henrico, VA 23229
Office:
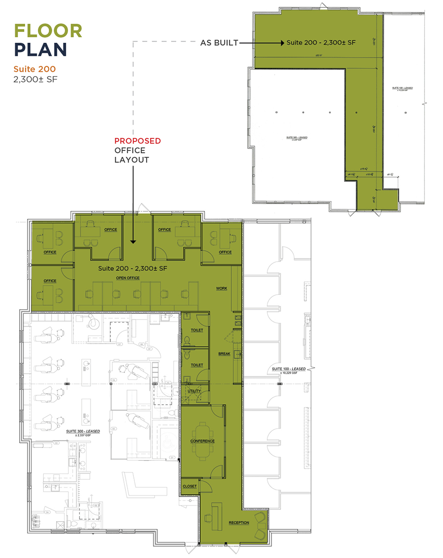
2,300± SqFt
Contact Brokers
Interested in this property?
Property Information
Description
- 2,300± SF OFFICE/MEDICAL SUITE AVAILABLE FOR LEASE!
- New construction, ideal for medical or office user
- Adjacent to Ukrop’s Food Hall
- Within walking distance to numerous restaurants/retail amenities at The Village Shopping Center
- Abundant parking (4.5 spaces per 1,000 SF)
- Building signage available
- Lease Rate: contact agent for lease details


