7400 Impala Dr
Richmond, VA 23228
Industrial:
221,000± SqFt
Contact Brokers
Interested in this property?
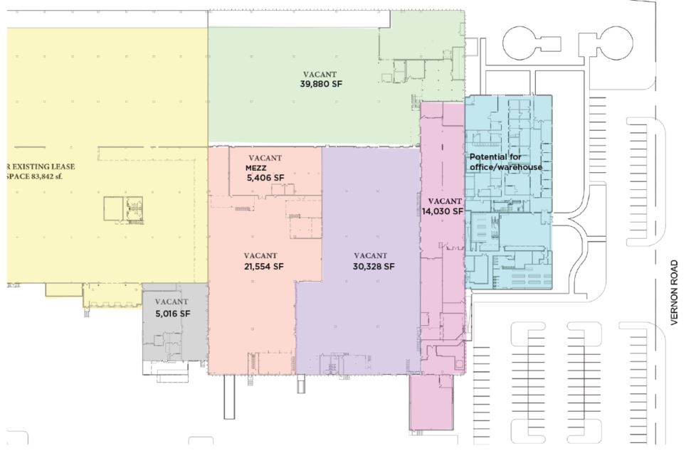
Description
- 142,800± SF available for lease
121,800± SF of warehouse - 6 existing and 3 potential dock loading and 1 drive-in door (ramp)
- 32′ – 34′ clear ceiling height
- Up to 102 parking spaces
- Additional office potential
- 4′ x 50′ column spacing
- Fire suppression: ESFR throughout
- Electrical service supply is (3) 480v 3 phase transformers rated at 2500 kva each. Warehouse service at 480/277/120v metered.
- LED lighting (18-30 footcandles)
- Zoning M-1
- Rail – dock level interior rail
- Water – Dual 2″ water meters
- Sewer – Two 6″ lines
- Gas – 4″ gas line, suspended heaters
- Lease Rate: $5.95/SF NNN, depending on TI and terms of lease



