4401 Waterfront Drive
Richmond, VA 23060
Office:
39,123± SqFt
Contact Brokers
Interested in this property?
Property Information
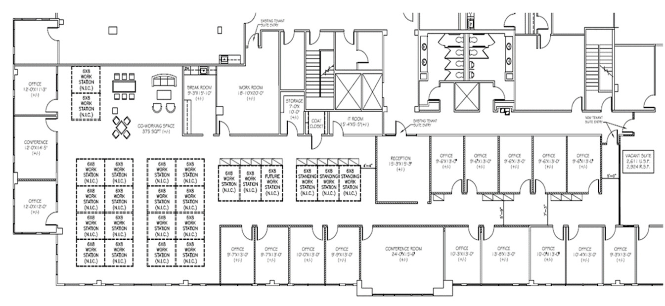
Description
- 8,811± SF of turn-key office space for sublease
- Lakefront property with patio and outdoor seating
- 17 private offices, large conference room, open work space, and welcoming reception area
- Located in Innsbrook office park with close proximity to Short Pump Shopping Center and other nearby amenities
- Term runs through 6/30/24
- Contact agents for pricing

